Bildung, Erziehung und Betreuung
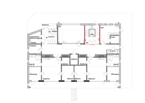
Bildung | Der Neubau des viergruppigen barrierefreien Familienzentrums mit U3 Betreuung wird den maroden dreigruppigen Kindergarten am Dattenfeld ersetzen. Die multifunktionale Nutzung als KITA
und als Bildungs- und Veranstaltungsstätte für Erwachsene bedingt ein anspruchsvolles Raumkonzept. Zusätzlich zu den Gruppen- und Nebenräumen einer Kindertagesstätte steht u.a. ein Mehrzweckraum,
ein großzügig gestaltetes Foyer und das Büro der Leitung zur Verfügung. Aufwendiger gestaltet sich auch die Planung der Küche, der WC-Anlagen und der Materialräume für die Mehrfach-Nutzung. Der
nicht unterkellerte zweigeschossige Bau ist mit einer Fußbodenheizung ausgestattet, wird dezentral mit Frischluft versorgt und verfügt über einen Aufzug. Die vorhandenen Außenanlagen und der
Baumbestand sind im Planungskonzept integriert. Im Zuge der Anpassung der Stellplatzsituation an die neuen Bedürfnisse werden Kanal und Hausanschlüsse sowie die Umzäunung erneuert und ergänzt.
Für die praktische Umsetzung der Zusammenführung von Bildung, Erziehung und Betreuung in Windeck-Dattenfeld ist ein Meilenstein erreicht.
|
|
|
| Bauherr: |
Gemeinde Windeck |
| Projektstandort: |
Bergische Str. 23, 51570 Windeck-Dattenfeld |
| Planungs-/ Bauzeit: |
01.2017 - 05.2018 / 06.2018 - 08.2019 |
| BRI / BGF: |
4.650 m³ / 1.088 m² |
| Kosten: |
2,57 Mio. € brutto (inkl. NK) |
| Leistung hmp: |
Architektenleistungen LPH 2-6 |







